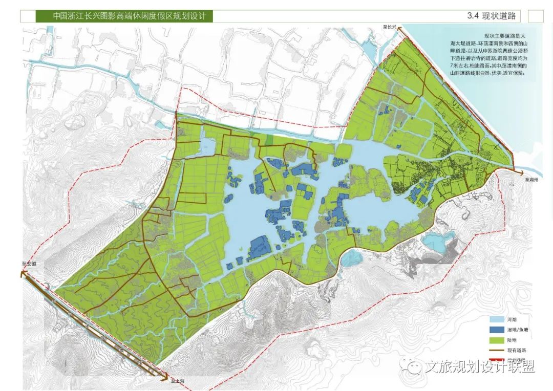
您现在的位置是:首页 > 国内旅游目的推荐 > 正文 国内旅游目的推荐 【案例】长兴度假区规划设计方案(上) admin2024年02月22日 03:58:27国内旅游目的推荐200 百套策划花了2个亿,只为项目精准定位,最终不靠门票年收入6亿!中国未来田园版恒温乐园开园了!乌村,中国第一家体验式田园度假综合体做梦想中的民宿主,无需特定风格让传统村落走向现代、走向未来、走向世界灵魂拷问,文旅人到底缺什么?看“田园综合体”的多维视角文旅融合,“新”在哪儿?芝麻谷:仅40亩却很精致,山谷里的艺术精灵一文看懂如何建设数字乡村为什么“非遗+”在文旅融合中备受青睐?旅游掀起工业风,讲好企业生产故事沉浸式体验,让游客“陷进去”和“嗨起来”大文旅产业的特征、商机和突破路径文旅景区高级竞争是吸引力古村保护与活化的“七宗罪”乡村文旅的100个盈利点(上)为什么你的文创产品卖不出去?康养小镇,如何走好“康养”这步棋?乡村振兴规划与落地实施如何塑造超级农业IP综合体?创意农业:田园综合体落地的关键注重特色小镇建设中的文脉传承这样的农村小院,才是真正的情调小院太重要!文旅人都要看看这份工作报告!乡村究竟需要什么样的规划?中国民宿的星辰大海康养旅居,时尚生活方式!【文化旅游】全域旅游怎么做?可借鉴这6个地方的经验田园综合体:9种成功的业态20种·经典藤本月季,随便种一棵,就能美爆你的庭院!文化 | 文化产业10大关键词、10大特征、10大趋势预测乡村振兴下的乡村旅游与“三产”融合庭院诧寂美,让人心生宁静休闲农文旅又添新标准文旅融合背景下,文旅街区怎么搞?【文化创意】当传统农业遇到文化创意,“土”特产也变国际范儿【文化IP】崛起的“萌经济”如何唤起更多创意IP 转载请说明来源于"旅荐网",部分内容转载自网络,如有侵权请联系qlwl@foxmail.com删除 本文地址:https://www.15386.cn/post/12349.html 上一篇 长春5a景区有哪些?超乎想象!长春秘境,美到让你心动! 下一篇 扬州大运河文化旅游度假区 | “庆元宵 猜灯谜”赢奖品!更有廉政观影活动诚邀参与! 相关文章 【文旅中国快报04.03】《旅游规划通则》4月1日起正式实施;《文化和旅游部艺术司关于第六届中国越剧艺术节申报事项的函》发布 旅游攻略丨九华山自驾两日游 抓住最后一波年味!深圳元宵游玩指南 旅游攻略 | 九华山自驾游推荐路线(两日游) 2026曹州牡丹园花期游玩全攻略来了,一篇就GO了! 九华山旅游攻略 | 寺庙挂单篇 般若舟祈福问道崆峒山旅游攻略户外爬山 攻略 国内小城,老外扎堆?莽山保姆级旅行指南,一文看懂景区玩法与行程规划 亳州清明节3天旅游攻略 阳朔—桂林旅游攻略,两日游 发表评论 取消回复 评论列表 这篇文章还没有收到评论,赶紧来抢沙发吧~