下岩贝景区云峰十二重
下岩贝景区云峰十二重
下岩贝景区云峰十二重 “入夜的云峰灯火不仅为旅人而留,也是村民回家的路标。” —— 朱培栋 新昌下岩贝村位于海拔三百余米的浙东山脊之上,早年在浙江省土地综合整治+乡村旅游模式下,通过激活土地、农房等闲置资源,重点打造“茶乡体验游”和“乡村慢生活体验区”,逐步发展为新昌县全域旅游示范村。 
近年随着户外目的地的流行,下岩贝村因其海拔高、气候条件适宜,常年可得壮阔云海景致而再度名声鹊起,吸引了众多露营徒步等户外活动爱好者。随着乡村旅游需求的扩张升级,当地政府计划全面提升乡村景区配套设施,发展多元业态,以此带动乡村发展、村民增收,探索实现共同富裕的新路径。 

由line+联合创始人、主持建筑师朱培栋带领的建筑、室内、景观一体化设计团队,在介入下岩贝景区提升工程时,面对乡村建设用地指标紧缺的难题,从两方面着手:一是对乡村基础设施的差异化设计,以不占用指标的方式在生态修复和美学植入上焕新乡村环境;二是对低效存量土地的再利用,补充游客村民活动中心、露营观景平台等功能,为当地引入新业态和人流量。 

“云峰十二重”是第二种策略中最重要的组成部分,也是此次乡村景区提升的重要锚点。其所在的场地曾是村口的茶叶加工厂,与周边的民居尺度相比体量巨大、尺度失衡;另一方面,茶厂背后的悬崖即为下岩贝观赏云海和十九峰景观的最佳点位之一,而公众前往此处的路线因被茶厂阻挡而必须绕路通行。 
随着下岩贝乡村产业的不断迭代发展,茶厂搬迁后的存量土地指标成为了此次公共空间提升建设的用地。 
△ 原茶厂 
乡村传统自发性设立的公共空间,如礼堂、食堂、祠堂等,往往利用率低;而一般零售空间,如小超市等,公共性普遍较弱。考虑到场地处于村口,同时具备为游客和村民所用的可能性,因而在开放式的命题下,我们通过前置的运营介入,尝试探索一种以公共活动为内核,非标商业为载体,立体路径串联的开放空间系统,同时覆盖村民活动及乡村旅游的多元化场景,形成当地的乡村生活新坐标。 
NO.1 尺度的回归与场景的置换 项目场地位于村入口停车场附近,连接崖畔游步道,毗邻村民居所,原用地范围内建有一座体量巨大的白色方盒体厂房和一上一下错落的悬崖观景平台。在对原有地形和游客、村民流线进行梳理后,建筑设计上采取了两种策略。 
一是重塑尺度,将54.5*48.6*8.33(h)米的封闭巨构盒式厂消解为更亲人的小尺度,融入乡村肌理,将原本封闭的界限转为完全开放的界面,形成停车场-“云峰十二重”-观景平台-游步道的完整流线,还景与民。 
△ 场地生成 
二是因坡筑屋,从原茶厂的二层顶标高开始,形成若干观景平台,并依次跌落、延伸至原有悬崖观景台,形成一系列层叠的片状开放平台,直面云海及十九峰,并将民宿、餐厅、咖啡、零售、游客及村民服务等多样化的配套功能置于其中。 

“云峰十二重”建筑单元的原型从户外露营帐篷获得启发,设计上以简洁的几何切削式为其塑形。群组的雕塑感体量仿佛一组十二座高低不同的“飞来”冰峰,也与远处的“十九峰”遥相呼应。 
十二座“云峰”采用单元化钢结构模块,用以包容迥异的功能空间。不同尺度的平台犹如缭绕山间的层云插接串联群峰,形成多种标高的开放观景平台,从而最大限度地为后续商业运营创造具有遮蔽的弹性空间。由轻钢结构构成的浮空栈道连接垂直交通,轻盈地蜿蜒迤逦于平台和群峰之间,形成了自由流动、立体复合的开放漫游系统。 
临近悬崖处的一上一下的观景平台是遥望十九峰和云海日出的最佳地,曾是背包客最爱的露营地。设计保留了双平台作为公共观景平台,并设置了面向游客开放的穿越流线,经由上平台底部后,即可直接到达悬崖大观景平台和崖畔游步道。 


NO.2 单元化平面和多元化场景 “云峰十二重”的平面布局以散点聚落的方式,强调通过性,建筑与环境、室内与室外互相渗透。首层十二个单元分组团不等距地围合排布,单体的开口朝向中心,对外形成统一完整的纯粹界面,对内则面向中心院落形成丰富的展示面和开口,由空间的具体内容赋予一系列相似的单体以独特性。 

覆盖院落的片板重叠交织,构成了类似于屋顶的空间限定,其中开洞则形成了类似于天井的形式,为地面的院落和二层的中庭导入充足的光照和通风,也由此形成了不同层次的灰空间,为商业外摆、村民集会、游客集散、乡村市集和会展活动等不同的运营场景,均提供了灵活可变的空间。 



局部的二层平面由栈道串联,既是通道,也是多方向的观景平台,由此形成了自由而立体的社交空间。栈道提供了与首层截然不同的行走体验——在错落有致的白色单体间穿梭,在片板的屋顶下徜徉,如漫步云端。 


云峰单体目前已承接了包括游客服务中心、乡村文化驿站等公共服务设施,以及落日咖啡馆、创意茶饮空间、地方特色餐饮、精品民宿空间等差异化非标商业业态。“同一屋檐下”,天然地拉近了人与人之间的距离,以邻里社交作为空间纽带,将单元商业空间集聚为更具活力和人气的热闹集市。 





NO.3 差异化形式与工业化建造 建筑的结构选材出于其不规则形体、环境抗性、施工便捷等多方面的考虑。云峰的非标形体采用钢结构主体覆半透明性材料PTFE,以雕塑感的形式,在自然光下呈现出柔和的半磨砂质地。而膜下均匀排布LED灯带,透过PTFE膜在光线作用下产生半透明的朦胧效果,使建筑成为自发光体,为入夜后的各种活动提供自然均匀的光环境,也使整个建筑在夜间成为过往冷清乡村中的一个活力地标。 
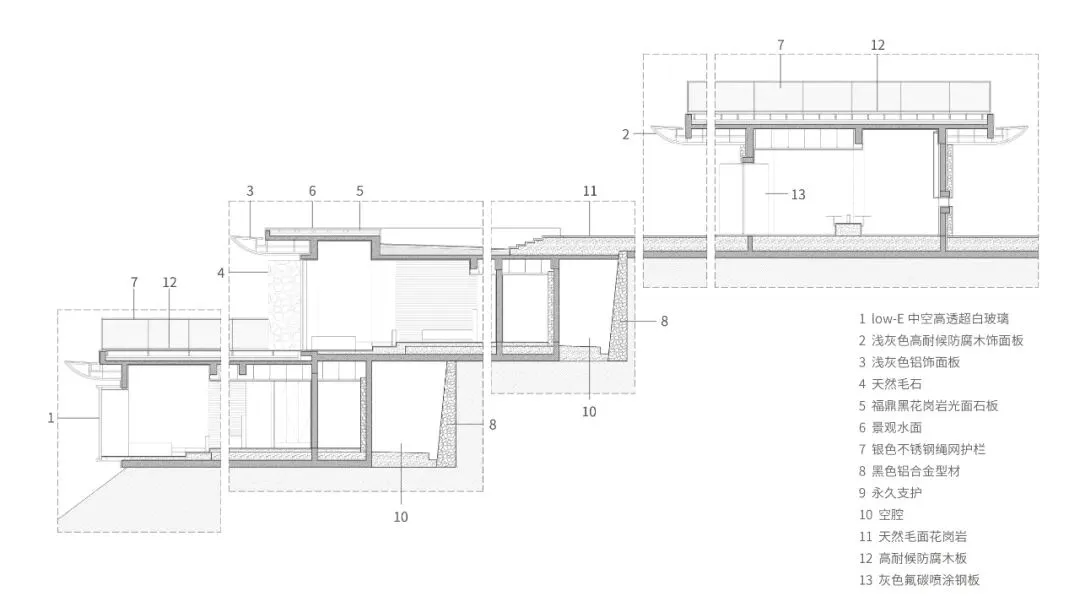
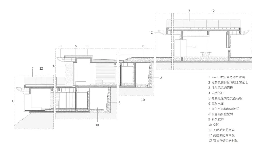
△ 墙身剖面 
大屋顶下表面则采用原木色碳化防腐松木板,为近人尺度增添温暖质朴的视觉质感。大屋顶上部则以金属屋面作为基层,并根据是否上人的需求,分别设置了以砾石作为保护层的上人屋面和采用单元式泡沫种植模块的非上人植草屋面,既减小了屋面构造厚度和荷载,同时也营造出云上草甸的观赏效果。 


钢框架结构的所有主要构件均在工厂预制完成,通过装配式的构件精度,减少了现场施工的耗时,并削弱对周边村民和环境的干扰及影响。云峰外表面的膜材在通过多种的耐候性、透光性、防火性试验后,最终选择了PTFE膜材,其质地轻便、易于运输和安装,而在工厂裁剪成所需形状后,可以快速在现场安装固定。 


NO.4 嵌入式地景与一体化设计 打开原有茶厂的封闭界面后,设计进一步打通了上观景平台所在的小山坡,通过抑扬交错的空间设计手法营造出具有叙事性的空间序列,重构通往云海十九峰景观的路径并向所有的游客和在地村民释放。 
在支撑起观景平台的岩石内,设计植入了对外开放的落日咖啡馆和露营配套设施,升级了露营体验和观云体验。观景平台作为下岩贝必经打卡点,延续了“云峰”的设计语言,其形态犹如从十二重“云峰”间中飘来的一片轻云,栖息在岩石与茶山坡地之上,形成了层云叠出的景象。 
下观景台进一步向外拓展,作为屋面向下跌落新的片状平台,并由此生成新的建筑体量。民宿建筑采用了与云峰不同的材料语言,以本地出产的天然毛石和深色烧杉板为主,将建筑体量完全隐匿于山体中。 

客房均直面悬崖和云海,获取极佳的景观视野。片状的屋面延续了与云峰相同的材料语言,层层跌落的形体关系则依坡就势,与悬崖边的自然茶田相呼应。 



室内设计最大化外部风景的观赏体验,由场地特征提取出来的“翠绿”与“云雾”提炼转换为室内空间与材质的语言,由自然山野强调空间享受。谦和低调的用色与软装,营造人与自然相处的平和心境——“云行不自知,树静谢风迟。行至路穷处,恰是观景时”。 



NO.5 茶“厂”到聚“场”,在地与共生 “云峰十二重”同时在商业性与公共性两个维度发展,通过将封闭的茶厂转换为开放的聚场,空间由封闭变开敞,围合变通透,有序变自由,由此重塑了乡村公共空间的尺度、可达性、包容性,满足不同人群的共同使用,不同的感受相互碰撞。 
片板状的观景平台和步行栈道则以多层级的社交、漫游及差异化非标商业为纽带,连接了一系列的建筑单元,既丰富了使用场景,也进一步强化了其公共属性。 
另一方面,“云峰十二重”以极具差异化的形象气质为乡村带来了新的流量。比平面化的图像展示更重要的是,场所与环境所营造出的空间知觉和身体性记忆——当现代异质感与自然乡土并置冲突的同时,轻柔温润的外表皮又映射融入云海晚霞中,独特的环境张力转化为真实的知觉感受与印象,为村民的日常性劳作或游客的非日常旅程,都增添了一段关于此时此地的难忘记忆。 

无论是作为环境与活动的背景,还是作为承载新商业内容的容器,“云峰十二重”的设计和营造,都尝试以全新的方式来构建村民、游客、乡村、自然的互动关系—— 一方面,它或许并不是一个传统意义上的商业盒子和“造富”容器,然而另一方面,它既是面向旅客的打卡新坐标,也是回应村民的生活新场景,既为旅客提供了来访和逗留的理由,也为村民们自发地去承接这些流量提供了某种新的机遇。 

· 技术图纸 · 
△ 云峰十二重一层平面 
△ 云峰十二重二层平面 
△ 云峰十二重屋顶平面 
△ 云峰十二重立面图 
△ 云峰十二重立面图 
△ 云峰十二重剖面图 
△ 落日咖啡馆平面 
△ 落日咖啡馆墙身 
△ 悬崖民宿一层平面 
△悬崖民宿二层平面 
△ 悬崖民宿西立面图 
△ 悬崖民宿北立面图 
△ 悬崖民宿剖面 
△ 悬崖民宿墙身 文章仅用于学习交流,版权归原作者所有,如有问题,请及时与我们联系,我们将第一时间做出处理。 

墨卡膜结构综合配套服务平台,深耕膜结构建筑领域,凭借前沿技术、卓越服务与完善体系,构建起设计、材料、加工咨询一体化的全链条服务生态。平台自成立以来,汇聚众多行业精英,以丰富的实践经验和精湛的专业能力,成功助力客户打造多个经典膜结构项目。 聚焦 PTFE、ETFE 两大核心领域,墨卡平台深度洞察项目痛点,从设计构思到落地实施,全程为客户排忧解难,成为客户信赖的坚实伙伴。为满足多元化市场需求,平台积极拓展业务版图,于武汉、成都设立分公司,全力开拓材料销售市场;在江西赣州、湖北孝感建立现代化膜材加工厂,引进国际领先的自动裁剪机、ETFE、PTFE、PVC 加工设备,由资深技术团队和熟练工人全程把控生产环节,确保为客户提供高性价比的优质服务。 无论是大型商业场馆、文化地标,还是生态景观建筑,墨卡膜结构综合配套服务平台始终以专业实力与创新精神,为每一个膜结构项目赋能,塑造建筑美学与功能的完美融合。 














































































· END ·
业务垂询
电话:0755-2868 5080 / 136 0000 0240
邮箱:china@zgjzmc.cn
网站:www.zgjzmc.cn
关于墨卡膜结构配套


相关文章
发表评论
评论列表
- 这篇文章还没有收到评论,赶紧来抢沙发吧~