【免费图纸 】分享20款民宿设计图纸,经典时尚,看一眼就让人心生欢喜
点击关注,获取更多免费图纸
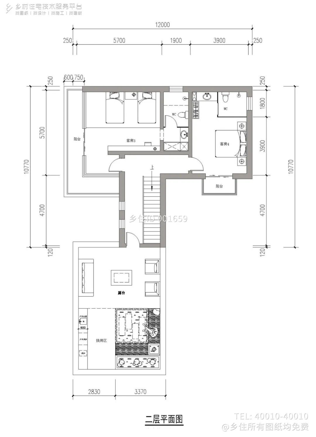
丨别墅-01丨



北京延庆二层现代别墅
ID001659

丨别墅-02丨



△二层平面图
北京房山二层现代别墅
ID001796

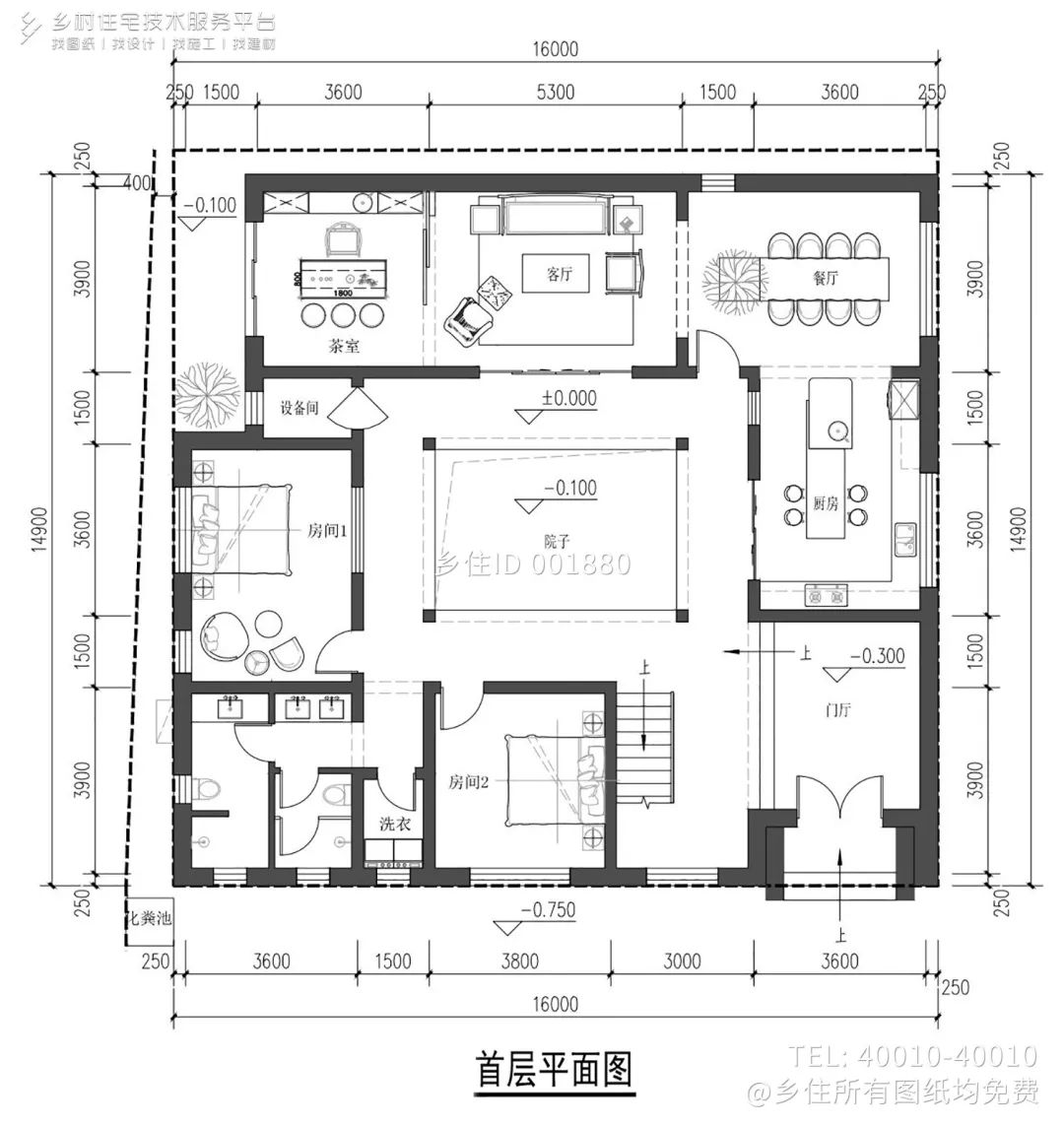
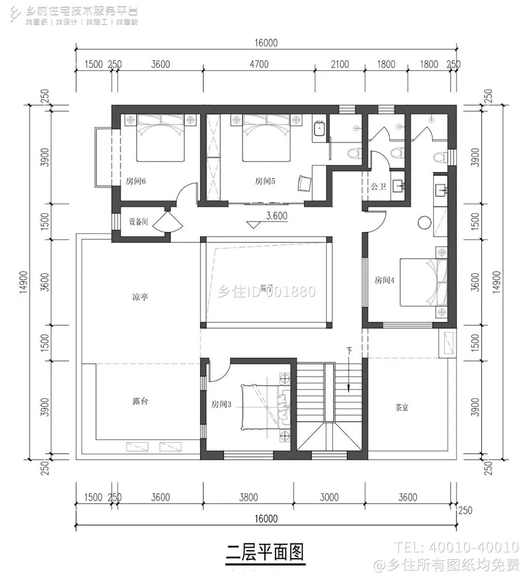
丨别墅-03丨


△一层平面图

△二层平面图
北京房山二层现代别墅
ID001880

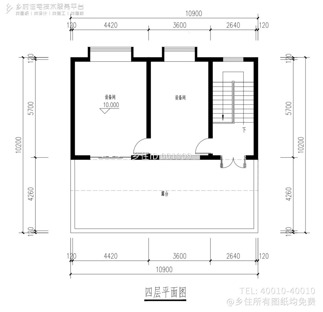
丨别墅-04丨



△二层平面图


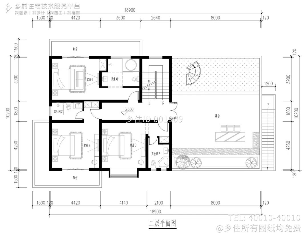
浙江舟山四层现代别墅
ID 001909

丨别墅-05丨


天津蓟县一层现代别墅
ID 001913

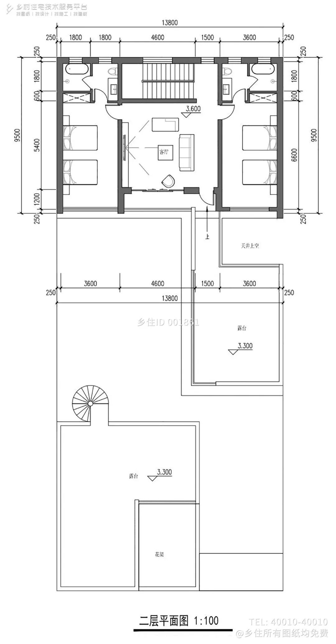
丨别墅-06丨


△一层平面图

北京平谷二层现代别墅
ID001861

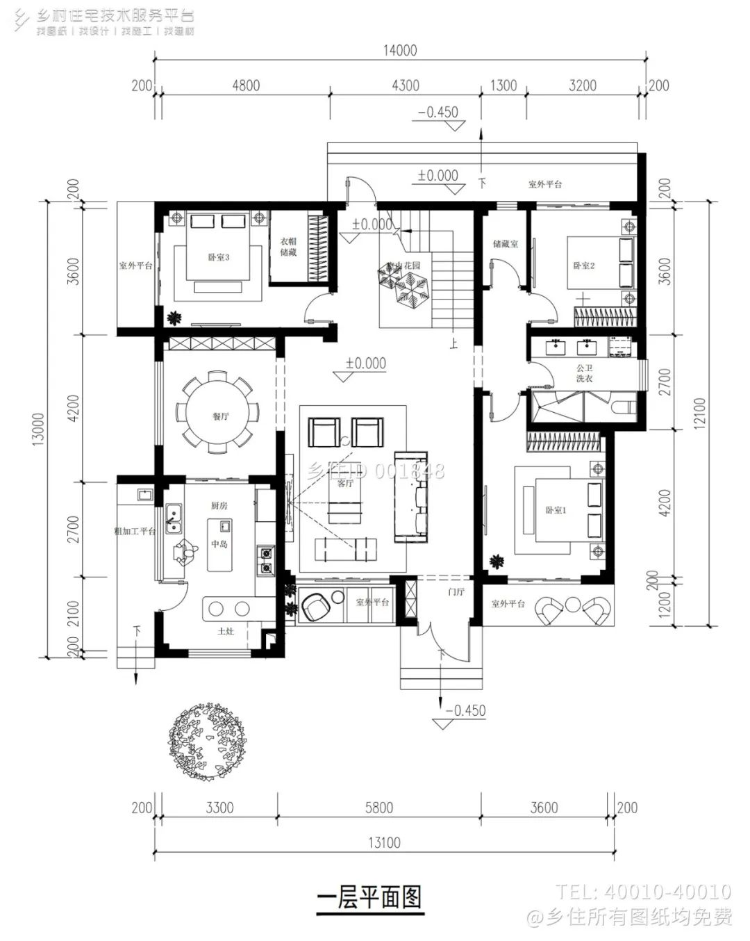
丨别墅-07丨




重庆渝北二层现代别墅
ID 001848

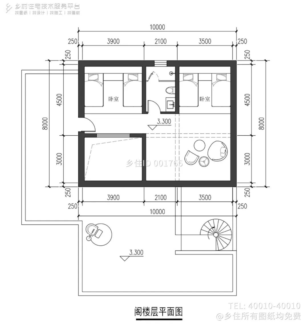
丨别墅-08丨



△阁楼层平面图
北京门头沟一层现代别墅
ID001766

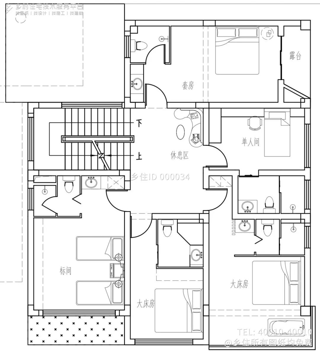
丨别墅-09丨


△一层平面图

△二层平面图

△三层平面图

△四层平面图
浙江舟山四层现代别墅
ID000034

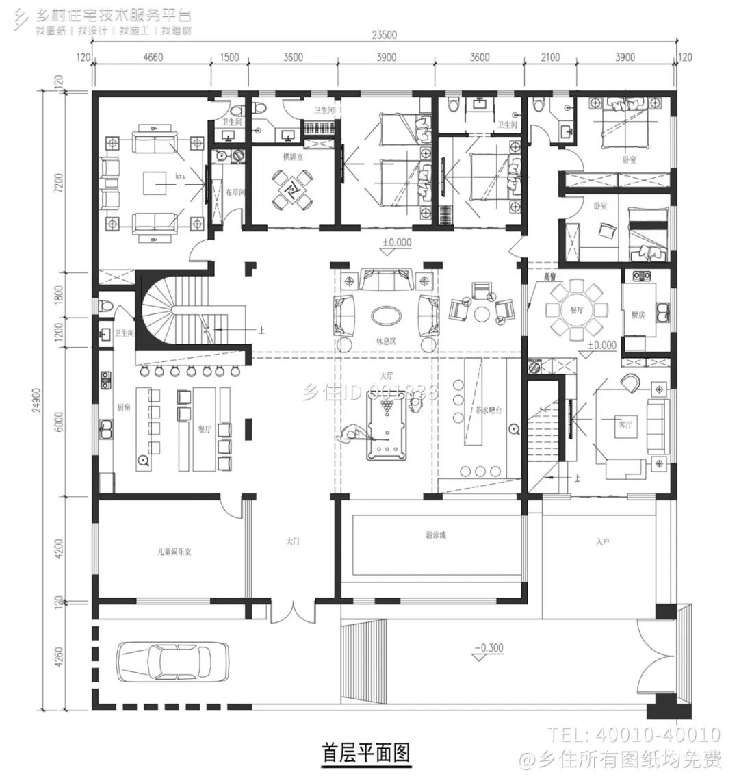
丨别墅-10丨



北京房山二层现代别墅
ID 001838

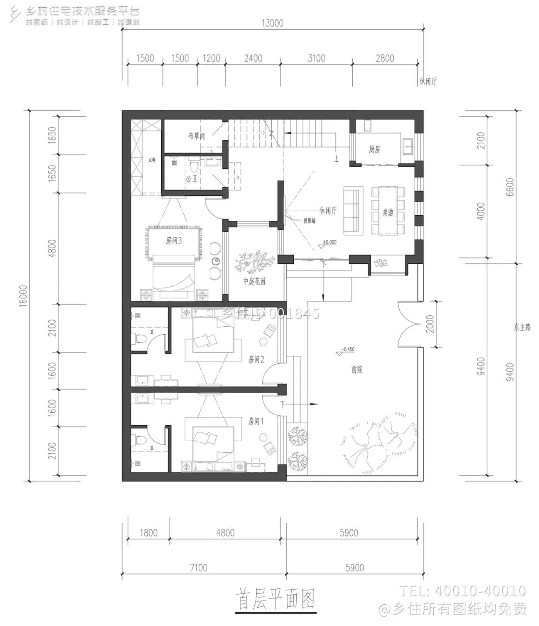
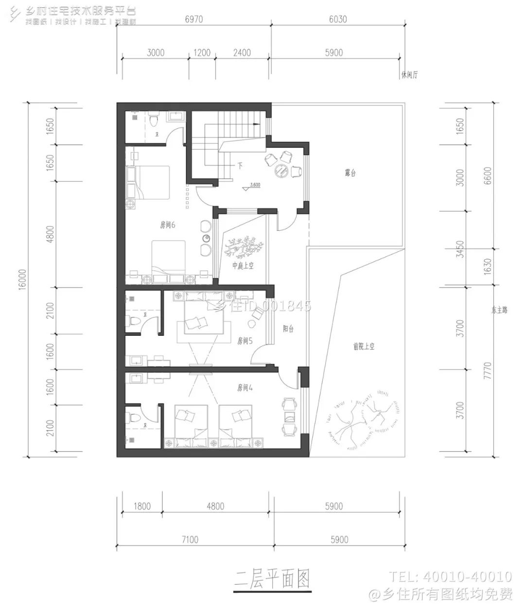
丨别墅-11丨



天津蓟县二层现代别墅
ID 001845

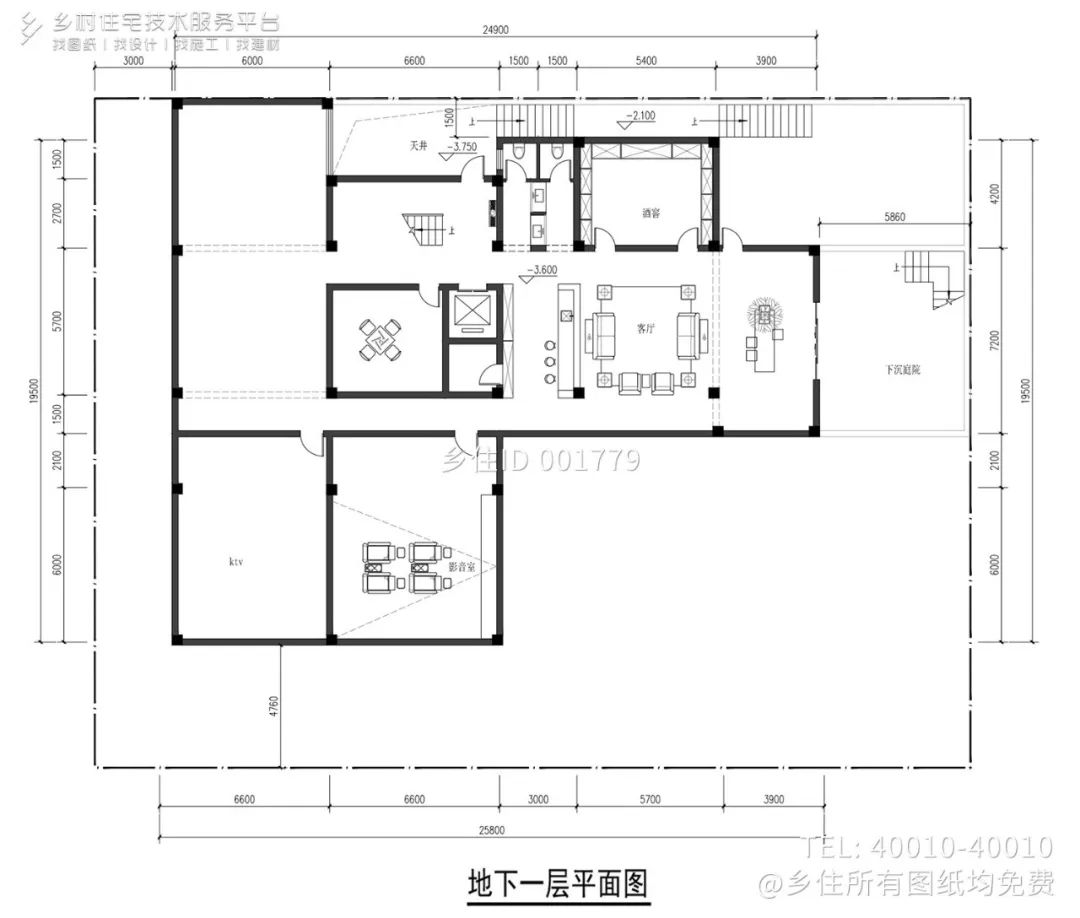
丨别墅-12丨



△一层平面图

△二层平面图
北京房山二层现代别墅
ID 001779

丨别墅-13丨



△二层平面图
甘肃白银二层现代民宿
ID001669

丨别墅-14丨


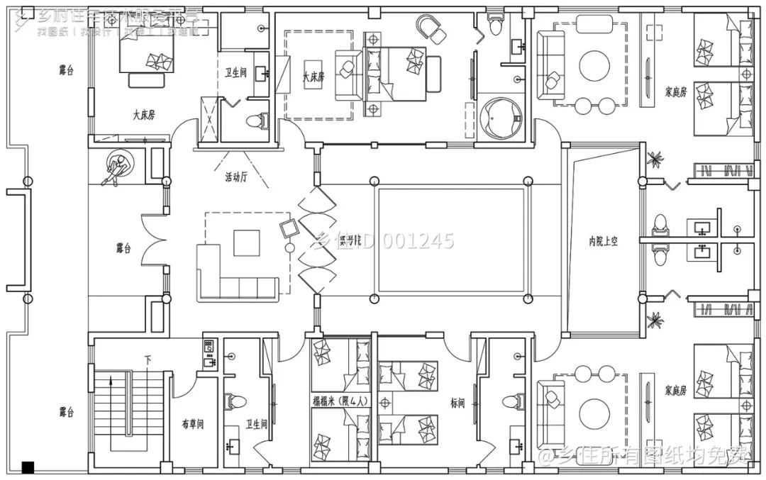
△地下室平面图

△一层平面图

△二层平面图
北京怀柔二层新中式民宿
ID001245

丨别墅-15丨


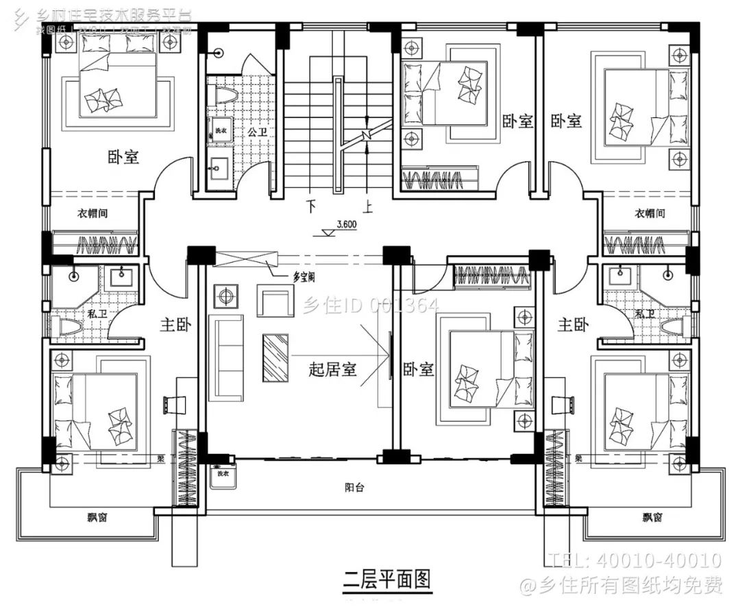
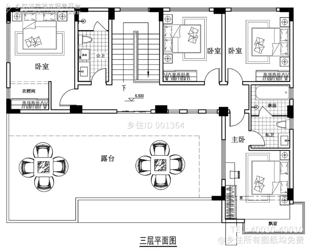
△一层平面图

△二层平面图

△三层平面图
广西梧州三层现代别墅
ID 001364

丨别墅-16丨


△一层平面图

北京延庆二层现代别墅
ID000901

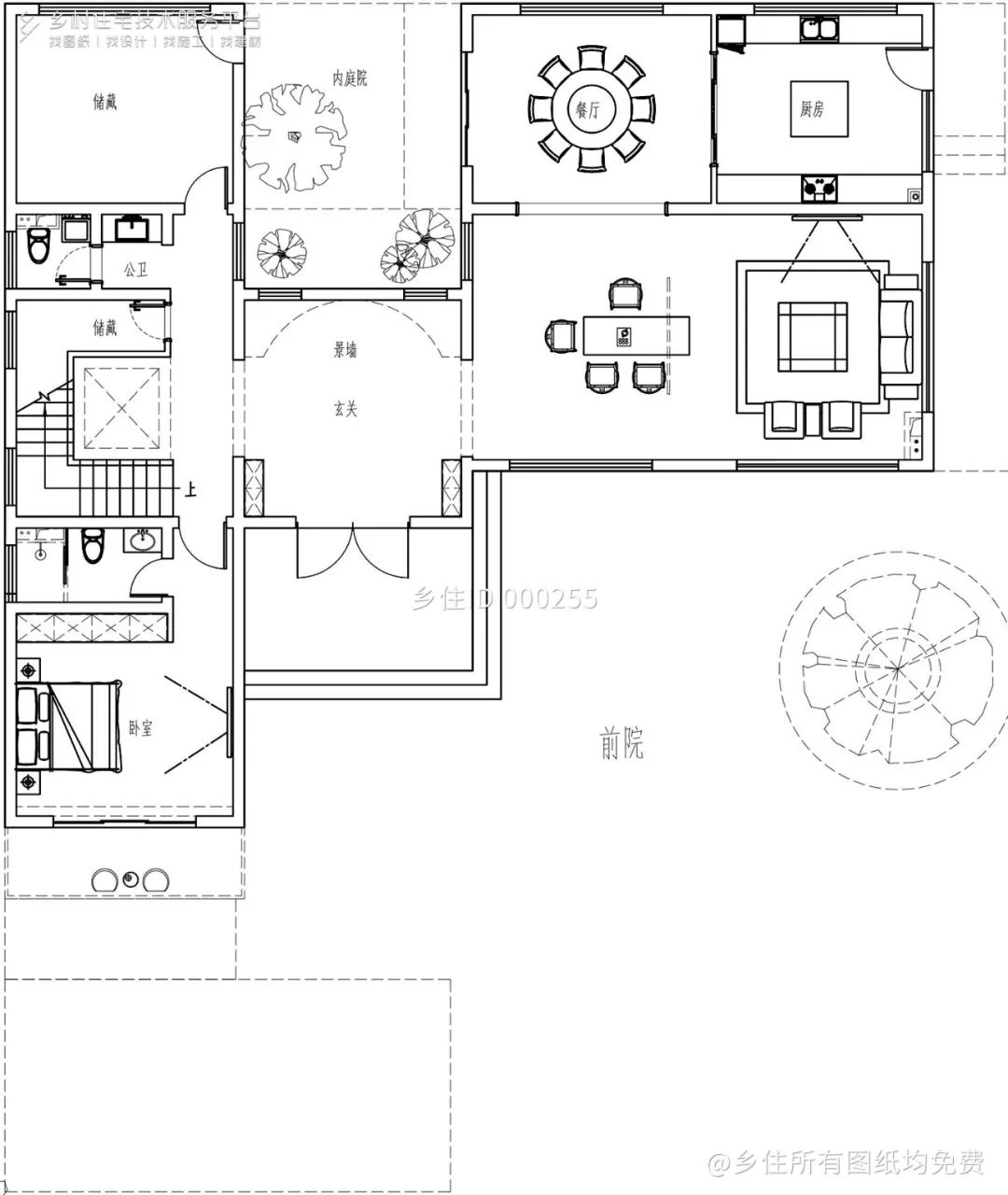
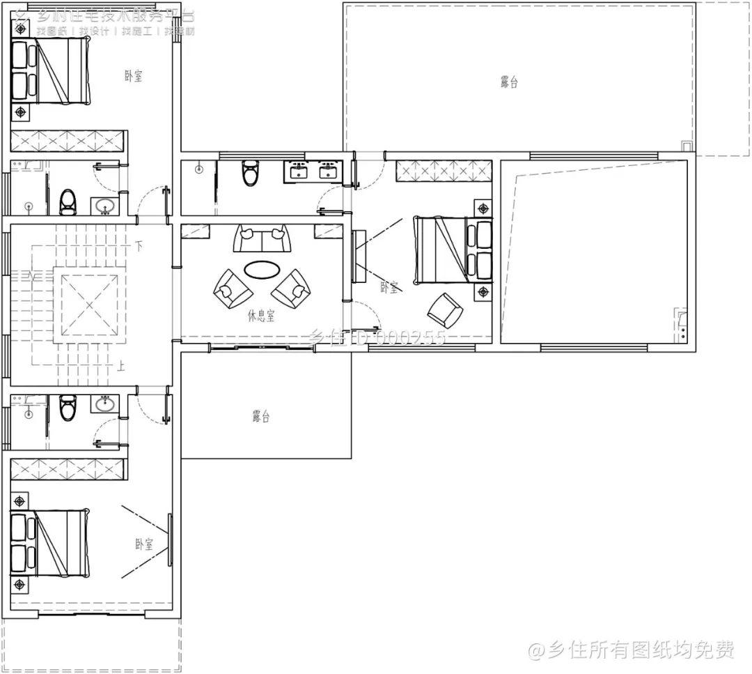
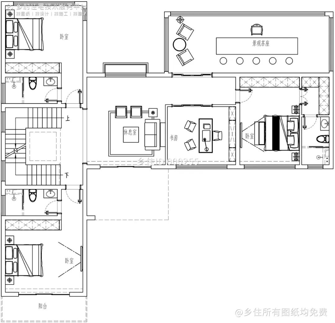
丨别墅-17丨


△一层平面图

△二层平面图

△三平面图
江苏苏州三层新中式民宿
ID000255

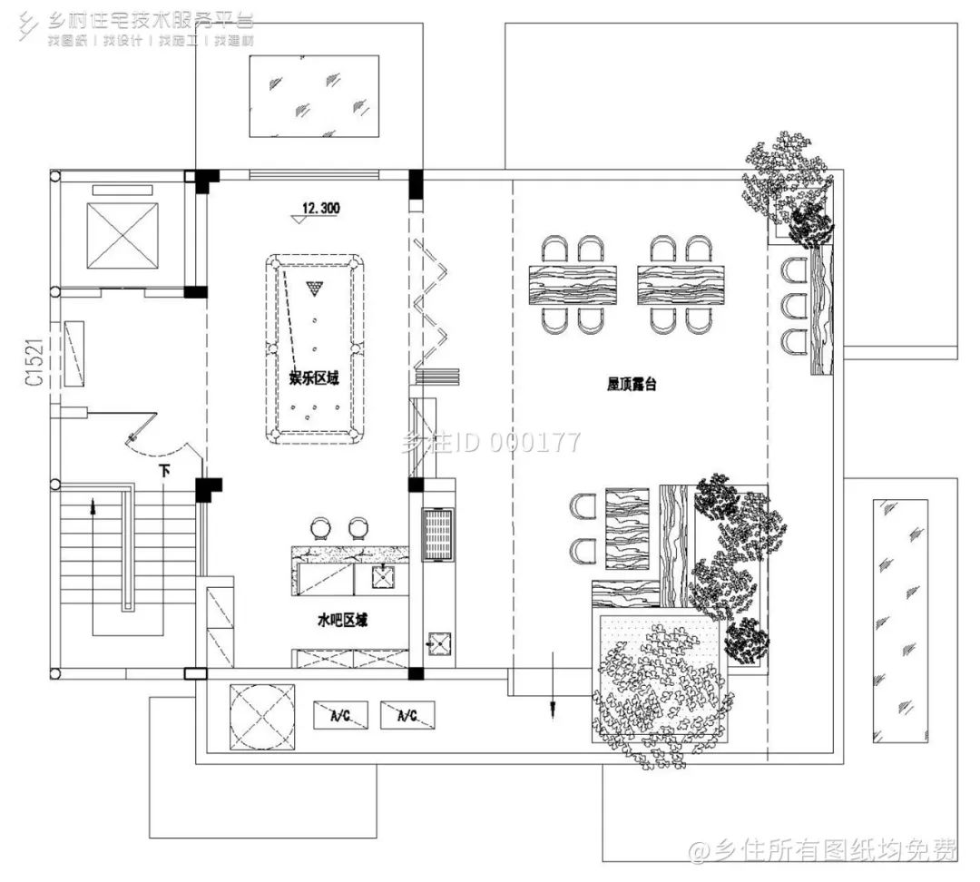
丨别墅-18丨


△一层平面图

△二层平面图

△三层平面图

△四层平面图
海南海口四层现代民宿
ID000177

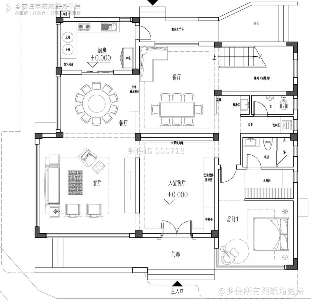
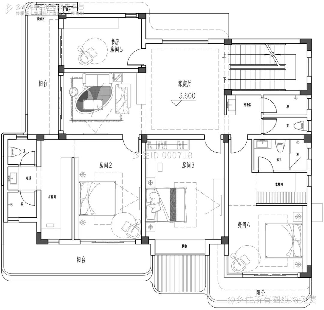
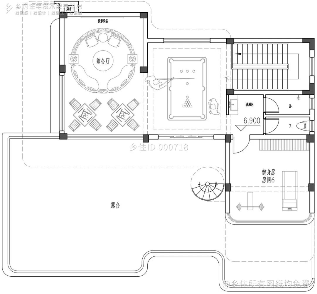
丨别墅-19丨



△二层平面图

△三层平面图
福建泉州三层现代别墅
ID 000718

丨别墅-20丨


河南南阳三层欧式别墅
ID000763

推荐图纸如果尺寸不符合
扫描二维码
获取AI免费设计

△长按二维码获取AI在线免费设计
往期回顾
【免费图纸 】分享20款二层自建别墅设计图纸,回乡建一栋,惊艳所有人
【免费图纸 】分享20款现代自建别墅设计图纸,回乡建房享受家的温暖
【免费图纸 】分享20款平屋顶别墅自建房设计图纸,老家建一栋实用型住宅
【免费图纸 】分享20款三层别墅自建房设计图纸,喜欢就收藏起来吧
长按下方二维码
添加微信
获取更多免费建房施工图纸

点击原文,查看免费图库
相关文章
发表评论
评论列表
- 这篇文章还没有收到评论,赶紧来抢沙发吧~