陕西 · 沐沣悦汤泉酒店 — 从自然中生长出的东方韵味| STUDIO A+ 优加设计

优加设计 STUDIO A+
LOCATION:
Shanxi,China
©直译建筑
沐沣悦汤泉酒店位于中国陕西的沣西新城,归隐自然原野,又与城市咫尺之遥。它是城市与自然相融合的交界之地,是宁静雅致的世外桃源,设计师通过“自然而然,顺势而为”的建筑哲学,将他打造成一座外在质朴、内在丰富的雅致空间。




设计师通过设置一系列墙体重新定义和编辑场所,将空间加以折叠与展开,并将这一“环境”融进了其所处的更大的环境之中。





因地制宜的下沉庭院,让建筑仿佛从自然中生长出来;采用黄土色清水混凝土保持与大地相似的色彩与质感,不冲击和破坏城市风景;还有极具东方韵味的架空“米纸灯笼”茶室、静水面、水楼梯和水面橙色玻璃亭为整个建筑增添了神秘色彩。







这座3,440平方米建筑规模的酒店为宾客提供6间豪华客房,每间均配备私属室内汤池,同时还设有8个带有私人淋浴和休息区的户外汤池。

户外汤池 ©陕西沣西新城投资发展有限公司
精致的餐厅和茶室为宾客供应地方特色茶品和美食。酒店的10005平方米用地面积允许相对宽松而舒适的景观布局,包含了花园、水景、大草坪和季节性花海。

酒店营造了隐逸安宁的心理氛围,对于那些处于精神困境中希望寻找放松与疗愈的都市人来说,这里是一个极具吸引力的选择。


值得一提的是项目与城市泵站和配电站结合在一起,新的结构需要建立在原有结构之上,受到已有设施的制约。因为泵站深处地下二层,为了减少土方回填,设计师从地下一层开始规划建筑功能,因地制宜,巧妙利用地形,设置了下沉庭院,并通过两个方向的绿坡与地面层相连,既为甲方节省了造价,亦体现出了人工建造对自然场地的尊重与利用。

©直译建筑



















项目类别:酒店项目
建成时间:2023.08
建筑面积:3,440 sqm
用地面积:10,005 sqm
建筑高度:8.4m
项目地址:中国,陕西,沣西新城
建筑设计:STUDIO A+(优加设计)
主创建筑师:王敏
设计团队:王敏、丁梅、王玉良、李辉、王轩、王崇硕、张雯雯、许斌、施国珍、刘科峰等
室内设计:公共区域—STUDIO A+(优加设计);客房及汤池—西安西旅文化旅游发展有限公司
结构设计: 北京清华同衡规划设计研究院有限公司
机电设计: 北京清华同衡规划设计研究院有限公司
幕墙顾问:哈尔滨工业大学建筑设计研究院有限公司
灯光顾问: 北京宁之境照明设计有限责任公司
景观顾问: 西安共生建筑景观规划设计有限公司
施工团队:陕西建工沣西建设有限公司
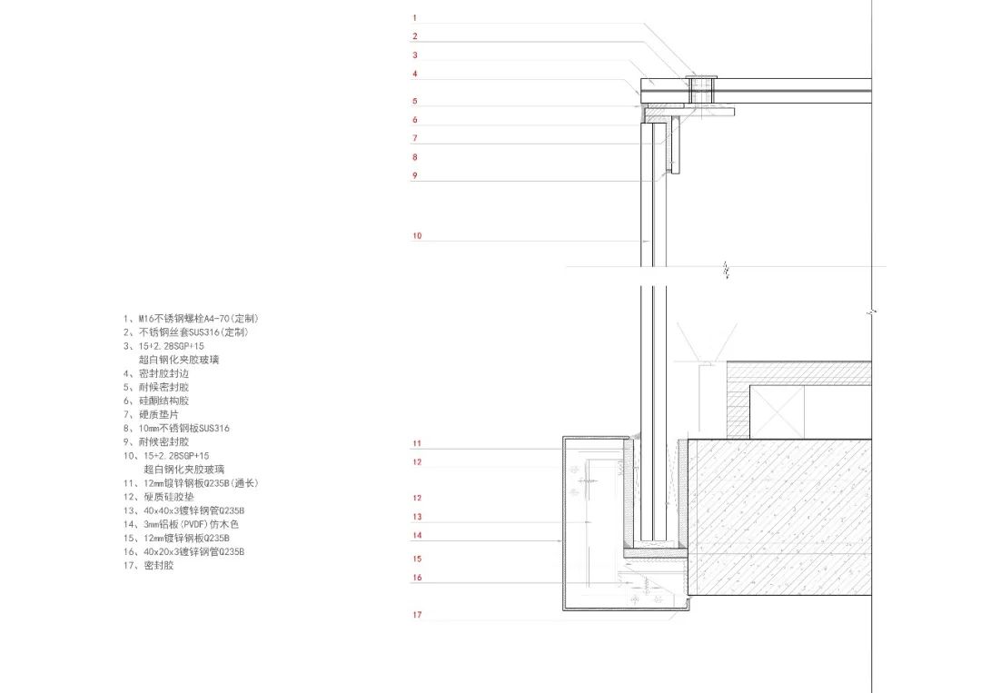
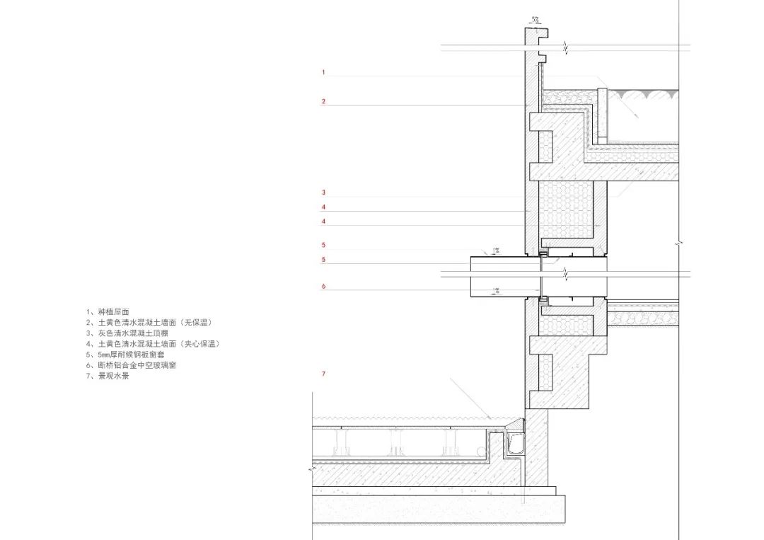
主要材料:黄土色木纹清水混凝土、耐候钢板、聚碳酸酯板、超白钢化夹胶玻璃做数码打印、极窄边框大型可移动门窗、温控可开启天窗系统、导光筒等
项目业主:陕西沣西新城投资发展有限公司


公司简介:
公司简介:
STUDIO A+(优加设计)致力于立足项目的唯一性,以独特的视角和思考为客户提供个性鲜明而前瞻性的设计,并力求提供以建筑设计为基础,同时涵盖室内设计、景观设计及产品设计等多维度、全方位的建筑全产品设计服务。STUDIO A+(ARCHITECTURE + INTERIOR + LANDSCAPE + PRODUCT……)这一名称不仅表示着A+设计团队既专业又跨界的设计实践特点,同时标志着这一团队一直以来孜孜追求的设计品质及生活品质。他们希望通过自己的设计,让建筑更完整,让生活更完满。
设计师简介:
王敏女士,毕业于清华大学建筑学院及美国明尼苏达景观及建筑学院;先后在美国、加拿大、澳大利亚及中国优秀建筑事务所/公司任职。曾作为中方主创设计师参与国家游泳中心水立方的建筑、室内及景观全程设计创作,荣获“中国建筑学会建筑创作大奖”及荣登“2007 中国魅力 50 人”人物榜。她于2007年创办STUDIO A+(优加设计)建筑事务所,同期创立了自己团队的时尚品牌“WM”,并担任创意总监。
▼ 往期推荐
朽木新生| 十大利用回收木材创造建筑之美
女性建筑师,不该是普利兹克的少数
南京 · 江宁嘉和华府 — 新艺术风格派
日清设计
杭州 · 凤凰谷文创总部 — Y 型山谷聚落
line+建筑事务所
北京 · 城市图书馆 — 银杏树下的书丘
Snøhetta


▼ 更多精彩内
相关文章
发表评论
评论列表
- 这篇文章还没有收到评论,赶紧来抢沙发吧~




