

该建筑位于18-22 H. Sienkiewicza的Wrocław中心,位于曾经由Zakłady Piekarsko-Ciastkarskie(面包店和糕点厂)“Mamut”占据的区域。
The building is located in the very center of Wrocław in 18-22 H. Sienkiewicza, in an area once occupied by Zakłady Piekarsko-Ciastkarskie (Bakery and Pastry Plant) „Mamut”.
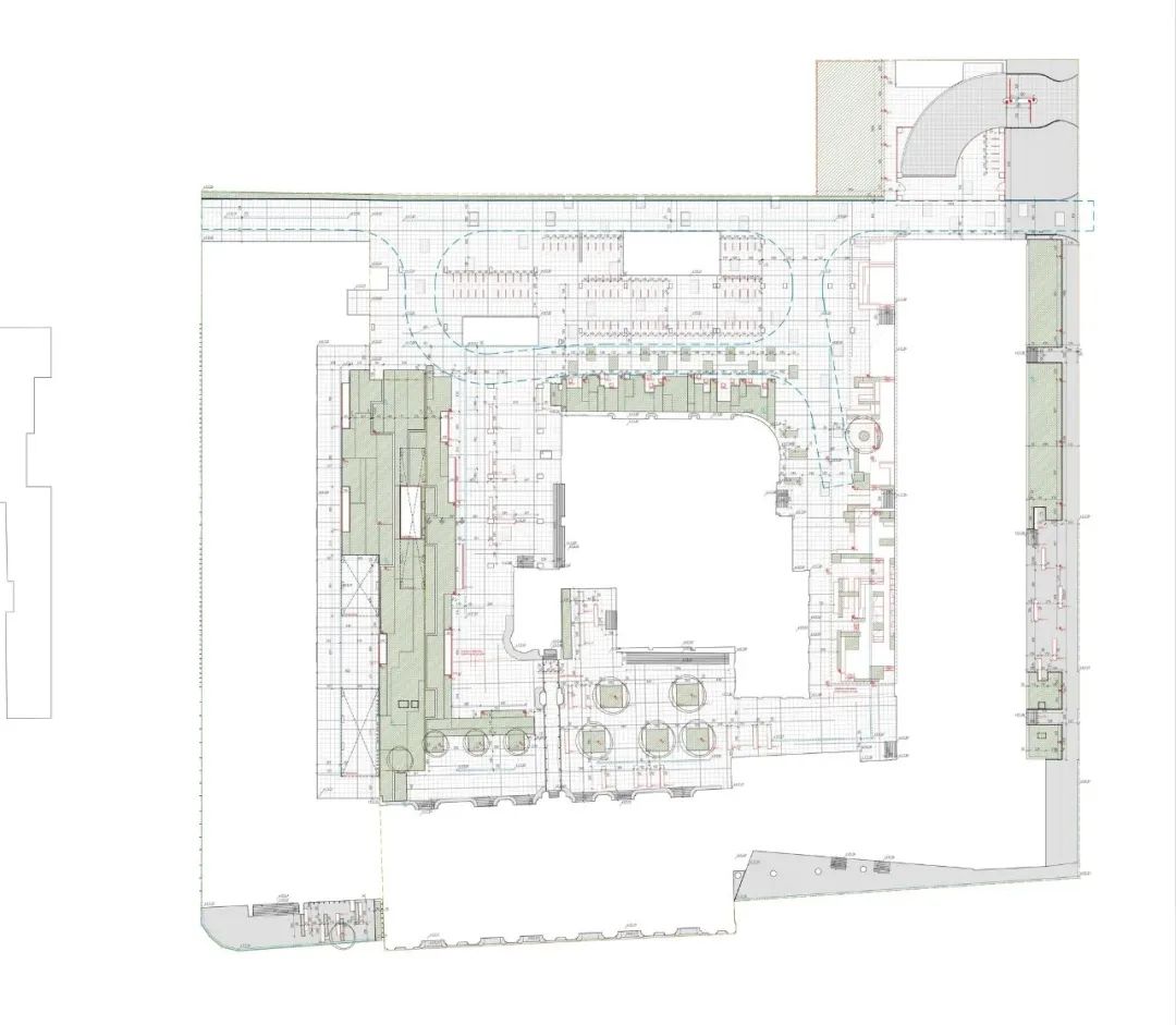
该项目涵盖了对前面包店剩余的两座建筑的改造和改建,这两座建筑受到历史保护官员的保护:位于H.Sienkiewicza街一侧的前面粉仓库(Magazyn Mąki)和地块内的前面包店(Piekarnia),以及建筑之间的连接。作为学生宿舍的一部分,这些历史建筑与一组新设计的侧翼相辅相成,形成了整个城市街区的建筑发展:东南侧和北侧是学生宿舍,西侧是酒店。
The project covers the renovation and adaptation of two remaining buildings of the former bakery, which are under the protection of the historic preservation officer: the former Flour Warehouse (Magazyn Mąki) on the side of H. Sienkiewicza Street and the former Bakery (Piekarnia) inside the plot together with the link between the buildings. The historic buildings, which are a part of the student hostel, are complemented with a set of newly designed wings, forming a building development of the entire city quarter: the student hostel on the south-eastern and northern sides, and the hotel on the western side.
历史建筑包含学生房间以及各种用途的公共空间。新的侧翼有七层地上建筑,用作学生和酒店房间,地下一到两层是车库、辅助和技术室。
The historic buildings contain student rooms as well as a wide range of common spaces for various purposes. The new wings have seven above-ground stories, used as student and hotel rooms, and one or two underground stories housing a garage, auxiliary and technical rooms.

大楼的主入口位于H. Sienkiewicza街,通向面粉仓库历史建筑内宽敞的前卸货大厅内的大厅。酒店的入口也位于H. Sienkiewicza街。该设计包括775个学生房间和240个酒店房间。
The main entrance to the building is located on H. Sienkiewicza Street and leads to a lobby inside the spacious former unloading hall inside the historic building of the Flour Warehouse. The entrance to the hotel is also located on H. Sienkiewicza Street. The design includes 775 student rooms and 240 hotel rooms.
地面层计划有两个零售店:前面的历史建筑里有一个咖啡馆,新设计的东翼有一个健身俱乐部。
Two retail outlets are planned on the ground floor level: a cafe in the front historic building and a fitness club in the newly designed eastern wing.
项目图纸
剖面图
【免责声明】本公众号发布的内容仅供学习交流使用,不以任何形式进行牟利。内容版权归原作者所有。如有侵犯您的权益,请及时与我们联系,我们将于第一时间协商版权问题或删除内容。内容为作者个人观点,不代表本公众号立场和对其真实性负责。