3700万投资如何规划?这份景区游客中心EPC方案给出了教科书级答案
3700万投资如何规划?这份景区游客中心EPC方案给出了教科书级答案郑重说明:本资料版权归原撰写/发布机构所有。如涉侵权,请联系删除! 

非会员领取方式 ☝识别上方二维码☝ 策划小圈子会员网站会员快速下载通道 👇识别下方二维码👇 

2026安康365智慧养老驿站商业计划书-23P 
2025双兴运动公园休闲运动公园景观设计方案-52P 
2025北京·古北水镇(司马台长城)国际旅游度假区项目宣讲推介PPT-40P 
2025芜湖城市规划馆策划方案-43P 
2025君山岛景区年度文旅营销方案-57P 
2025深圳星空露营主题酒店规划方案-38P 
2025学会讲故事文化创意赋能产业基于市场需求的农业休闲游专题研究策划案-55P 
湖南攸县乐达山茶油田园综合体概念规划-71P 
2025昌平草莓园亲子研学夜游营地营销方案-67P 
2025中南唐山湾拉唯那文旅小镇定位规划策划方案-72P 
2025扬州城市IP·扬小玉设计方案-27P 
2025深圳光明元宇宙亲子酒店改造设计方案-24P 
2025洪江区全域旅游标志VI导视系统设计方案-26P 
2025快手月光岛良渚企划案-31P 
2025南方地区美食文化乡村文旅景区旅游景观规划设计方案-130P 
2025山色峪片区文旅项目IP赋能乡村振兴提升规划策划方案-80P 
2025施秉县城市文旅宣传营销策划案-37P 
2025联盟产业峰会会场搭建及会议整体服务方案-92P 
2025健康养生酒店品牌定位规划方案-45P 
2025澳门高奢酒店小红书种草方案-23P 

[策划小圈子]从定位到落地:五峰山运动度假村的品牌打造与多元运营全案解析 
[策划小圈子]学习顶尖方案写法:看中医药康养城如何做“三生融合”的整体规划 
[策划小圈子]乡镇粮仓旧改文创商业综合街区整体提升改造设计运营策划方案(53页PDF) 
[策划小圈子]从产业规划到空间布局:一份超详细的山茶油田园综合体策划案拆解 
[策划小圈子]爱上山文旅度假区营销策划方案(140页PDF) 
[策划小圈子]138页完整方案!浦江“花间里·枫树下”田园综合体规划全解析 
[策划小圈子]一份完整的亲子露营农场规划方案:从区位分析到落地执行 
[策划小圈子]2024充电桩项目操盘指南:市场、选址、运营、收益,核心要点都在这 
[策划小圈子]156页文旅地产策划案深度拆解:乌镇旁的艺术社交小镇如何炼成? 
[策划小圈子]文旅项目策划范本:灵山湾冰雪童话小镇总体规划与运营方案深度解析 
[策划小圈子]文旅项目策划范本:深度拆解古北水镇的品牌、运营与增长逻辑 
[策划小圈子]从规划到运营:山西“秀容驿”温泉综合体全案深度解析 
[策划小圈子]如何为传统产业注入灵魂?看这份“民俗酒香小镇”方案如何玩转文化IP与产业融合 
[策划小圈子]策划人必藏!陕西八渡河文旅项目全案解析:策略、规划与运营管理 
[策划小圈子]2025音频营销宝典:蜻蜓FM年度商业计划书深度拆解,教你写出爆款方案 
[策划小圈子]从方案到执行:手把手教你写出让老板惊艳的团建拓展策划案(附西双版纳案例) 
[策划小圈子]从项目分析到落地执行:一份顶级灯光设计方案的全流程拆解 
[策划小圈子]从规划到落地:学习“方田古驿”文旅项目全案策划的完整逻辑 
[策划小圈子]从定位到落地:一份顶级微短剧产业基地策划案的深度解析与借鉴 
[策划小圈子]沉浸式文旅项目全案拆解:如何打造爆款“三打白骨精”主题乐园
📝一句话总结
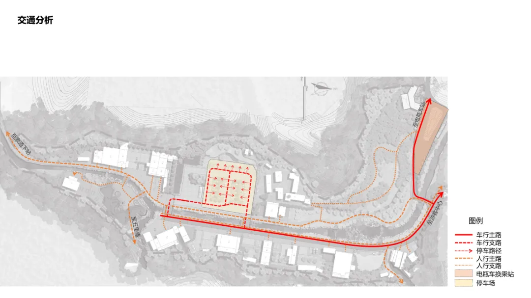
本方案是为湖南武冈云山森林公园创4A景区及承办省运会而制定的EPC设计规划,旨在将云山打造为“云山福地,云中仙境”的5A标准景区。方案涵盖伴山检票口、次入口游客服务中心、风车口停车场三大地块,总面积约6.1万平方米。设计策略包括提取祥云、山峰等地域元素作为设计语言,对景观、建筑及基础设施进行一体化改造升级,以满足旅游、赛事等多功能需求。方案详细阐述了各分区的平面布局、交通流线、景观节点、建筑立面改造及专项设计(如铺装、照明、植栽),并附有总投资约3707万元的详细估算,是一份系统、全面的景区提升实操指南。
本文档完整版新关注即可免费领取
领取方式:回复文末关键字即可下载完整版


......































......














































相关文章
发表评论
评论列表
- 这篇文章还没有收到评论,赶紧来抢沙发吧~