“阁楼藏梦,坡顶观景,伊犁现代民宿的诗意栖居”

项目名称丨新疆伊犁梁家民宿一期初稿
项目位置丨新疆伊犁
建筑尺寸丨34.70*11.90m
占地面积丨387.06㎡
建筑面积丨793.86
建筑风格丨现代
结构形式丨砖混结构
——

建筑人视图

南侧建筑人视图

西南侧建筑人视图
该项目位于新疆伊犁,主体为二层现代民宿。该民宿为一期,主要用作居住空间。场地的南侧北侧为邻居,西侧是村里主街道,也是进入场地的唯一交通流线,东侧目前是空地,之后邻居也要建房。
结合伊犁的地域特色,以现代田园风格为设计主题,打造一个兼具现代感与田园风情的居住空间,为游客提供一处远离喧嚣、亲近自然的休闲之地。

西侧建筑人视图

西北侧建筑人视图
民宿的西侧外立面,也是设计的亮点之一。设计师打破传统,运用独特的线条和几何形状,打造出一个极具视觉冲击力的外观。
无论是清晨的第一缕阳光,还是傍晚的夕阳余晖,都能在这面墙上留下美丽的光影变幻,让人忍不住驻足欣赏。

主体运用白色真石漆、木饰面和大理石等材质,打造简约、温馨且具有气质的居住环境。西侧走廊连续的拱门设计采用弧度稍平的线条,整体更加柔和,同时增加浪漫优雅的氛围。


南侧建筑局部人视图
白色的外墙与周围的自然环境融为一体,而木质与玻璃的结合则带来了温暖而明亮的居住体验。
民宿的庭院设置绿化带和景观小品,与周边田园风光相协调,为游客提供一个宁静、舒适的休闲场所。

建筑局部人视图
一二层之间的楼梯处采用了通高玻璃设计,不仅增加了空间的通透感,还让旅客在行走间能够欣赏到庭院的美丽景色。
这种设计不仅提升了居住的舒适度,还成为了一道独特的风景线,让旅客在享受现代居住体验的同时,也能感受到自然的美好。

建筑鸟瞰图

南侧建筑鸟瞰图
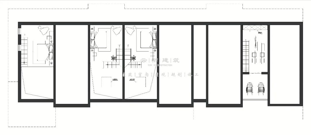
二层坡屋顶设计,不仅增加了建筑层次感,还为室内带来充足的光线。
阁楼作为民宿的一大亮点,可作为特色客房或休闲空间使用。这里拥有开阔的视野和独特的氛围,让旅客能够在享受私密空间的同时,也能感受到伊犁的自然风光和人文气息。

西南侧建筑鸟瞰图

南侧建筑局部鸟瞰图
它不仅是一处居住空间,更是一种生活态度的体现。我们希望通过这个设计,让每一位旅客都能在这里找到属于自己的那份宁静与舒适,留下一段难忘的回忆。

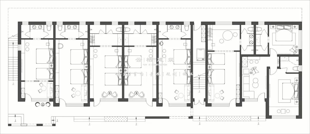
平面详图

一层平面图
该民宿为一期,主要用作居住功能。为满足不同人群的需求,民宿共设计了16间客房,包括大床房、双床房和家庭亲子房等房型。
每间客房都经过精心打造,提供舒适的床铺、现代化的家具和温馨的装饰,确保每位游客都能在这里找到宾至如归的感觉。

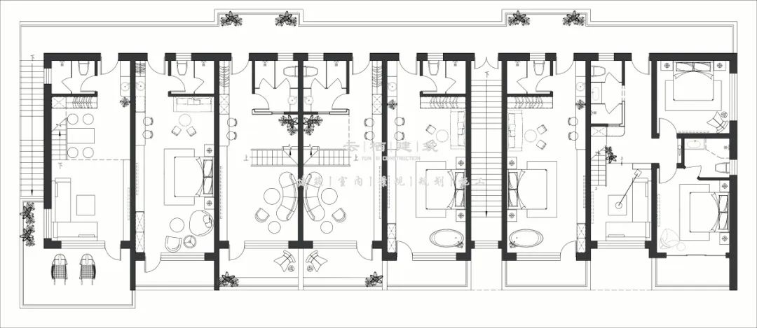
二层平面图

阁楼层平面图
宽敞的落地窗则让室内充满了自然光线,营造出一种宁静而温馨的氛围。

新疆伊犁的现代民宿设计,以简约、舒适、多元为特点,通过独特的建筑造型和丰富的房型选择,满足不同人群的需求。
愿我们每个人心有所属,奋斗有标
盖房子是大事,一生只一次
我们建的不仅是房子,更是生活
更多精美案例、可扫下方二维码获取
???
免费咨询
获取报价

微信:19528282471(电话同号)
近期文章回顾





?一键关注,了解更多精美案例的捷径 ?
戳下方预约
点击“在看”鼓励一下
相关文章
发表评论
评论列表
- 这篇文章还没有收到评论,赶紧来抢沙发吧~