旅荐网

您现在的位置是:首页 > 国内旅游目的推荐 > 正文

国内旅游目的推荐

武清一村文化旅游配套项目最新进展!

admin2024年02月20日 01:17:46国内旅游目的推荐126

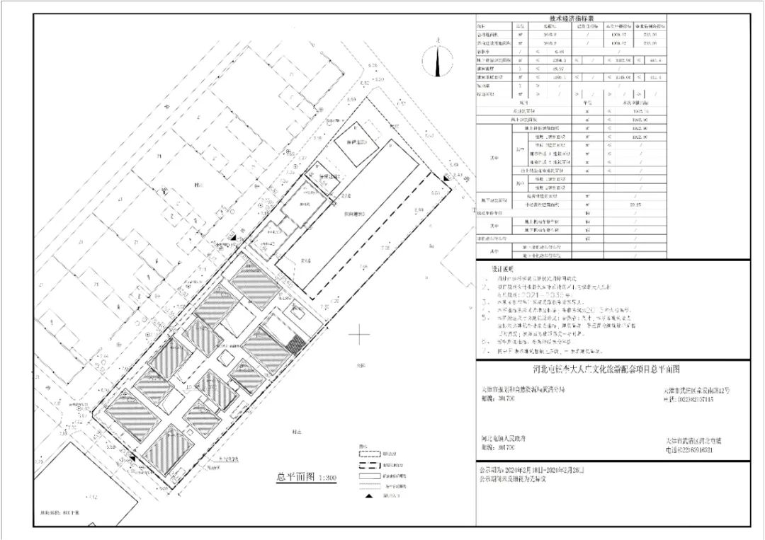
(武清区)关于天津市武清区河北屯镇人民政府河北屯镇李大人庄村文化旅游配套项目建设工程设计方案总平面图公示

来源:天津市规划和自然资源局武清分局 时间:2024-02-18 14:28

关于天津市武清区河北屯镇人民政府河北屯镇李大人庄村文化旅游配套项目

建设工程设计方案总平面图公示

天津市规划和自然资源局武清分局按照原住房城乡建设部印发的《关于城乡规划公开公示的规定》以及相关规定要求,公示  河北屯镇李大人庄村文化旅游配套项目  建设工程设计方案总平面图。公示期限自信息发布起7个工作日。                                                                                                      

公示期间,公众可以通过发送电子邮件、信函、电话的方式实名反馈我局。                                                                                                      

联系电话:022-82107115                                                          

电子邮箱:sgzj-wqfjjgk@tj.gov.cn                                                 

通讯地址:天津市武清区泉发南路12号(天津市规划和自然资源局武清分局)                                                                                                      

反馈时请注明:对  河北屯镇李大人庄村文化旅游配套项目  建设工程设计方案总平面图公示的意见。意见反馈的截止日期为公示期限最后一天(邮寄方式反馈的以邮戳日期为准),逾期未反馈的,视为无意见。                                                                                                      

                                                                                                      

注:1.最终总平面图以核发建设工程规划许可证附图为准。2.上述相关资料由外界所提供、并以行政许可申请人所提交的形式进行公开。上述资料和信息中如有错漏,使用上述信息和资料作为依据者自行承担责任。                                                                                                      

市规划资源局武清分局

2024年2月18日

发表评论

评论列表

  • 这篇文章还没有收到评论,赶紧来抢沙发吧~